Размещено 16 октября 2025 в 07:28
102
Цена: 1.2 млн. рос. руб. в месяц
15 174
13 032
Основные характеристики:
ID:
26734422
Тип сделки:
Сдам
Страна:
Российская Федерация
Субъект/Область:
Московская обл.
Город:
Дер заболотье
Улица:
Дер заболотье
Дом/корп.:
100
Тип недвижимости:
Производственно-складское помещение
Категория недвижимости:
Вторичная
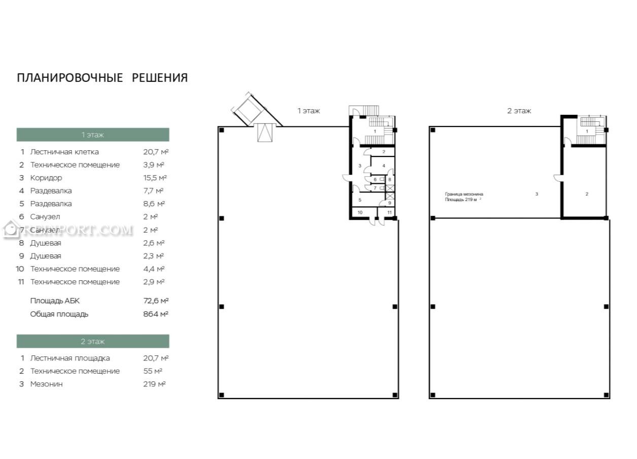
Общая площадь:
800 м2
Описание
В современном складском комплексе сдаются помещения 800 кв м (по запросу доступны иные площади). Системы круглосуточного контроля доступа, охрана, видеонаблюдение. 12 х 24 м шаг колонн, 8 м потолок, Бетонный пол с антипылевым покрытием, 6 т на кв м - нагрузка на пол. Комплексная инфраструктура с офисами и общественными пространствами. Транспортная доступность, удобно добираться сотрудникам.
Дополнительная информация:









