Размещено 20 февраля 2026 в 23:45
96
Цена: 347 016 384 рос. руб.
4 458 268
3 818 347
Основные характеристики:
ID:
56327
Тип сделки:
Продам
Страна:
Российская Федерация
Субъект/Область:
Московская обл.
Город:
Заболотье
Улица:
Дорожная ул
Дом/корп.:
17
Тип недвижимости:
Производственно-складское помещение
Категория недвижимости:
Вторичная
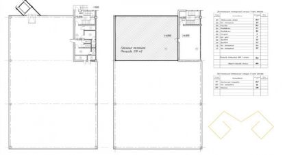
Общая площадь:
2880 м2
Описание
Арт. 129908906 Расположение: МО, г. Домодедово, д. Заболотье br/Симферопольское шоссе (М2) 19 км от МКАД. br/Новокаширское шоссе (М4) 24 км от МКАД br/br/Остановка общественного транспорта 5 мин. пешком. Ж/д станция(МЦД) 20 минут, на транспорте. От станции метро Аннино 25 минут на транспорте. br/br/Новый производственно-складской комплекс Лайт Индастриал, light industrial, абсолютно автономный блок, 2880 м2. Возможно использование для производства и хранения. br/br/ ХАРАКТЕРИСТИКИ ПОМЕЩЕНИЙ:br/ Рабочая высота 8 м Шаг колон 12 х 24 Полы антипыль Нагрузка на пол 6 т./ кв. м. Уровень пола 1,2 м Усиленная кровля - Технониколь (возможность установки климатического и вентиляционного оборудования на кровле) Доковые ворота - Hоrmann c герметизаторами и уравнительными платформами. ИНЖЕНЕРНЫЕ И ИНФРАСТРУКТУРНЫЕ РЕШЕНИЯ: Подключение электрической мощности Возможность установки климатического оборудования для мультитемпературного склада Система водоотведения увеличенного диаметра (d600) и локальные очистные сооружения Возможность подключения газа Техническая возможность дооснащения дополнительными воротами, нулевыми воротами и внешним пандусом Возможность организации встроенных помещений административно-бытового назначения. Парковка для легковых и грузовых автомобилей. БЦ на территории с офисами и кафе-столовой. Склад готов для новых резидентовbr/br/Купить склад, склад, производство, купить помещение, купить промышленное помещение, промзоны, промышленные парки, помещение для производства, купить помещение свободного назначения, light industriаl, лайт индастриал, пром парк, промпарки, склад в Коледено, купить склад в Подольске, купить склад в Домодедово, склад А классаbr/
Дополнительная информация:
Высота потолка:
8 м










