Размещено 25 января 2026 в 05:12
92
Цена: 21.9 млн. рос. руб.
288 120
242 558
14 713 851 рос. руб.
Основные характеристики:
ID:
29422859
Тип сделки:
Продам
Страна:
Российская Федерация
Субъект/Область:
Московская обл.
Город:
Жуковский
Улица:
Строительная
Дом/корп.:
14к1
Тип недвижимости:
Квартира
Категория недвижимости:
Вторичная
Комнаты:
3
Общая площадь:
133.6 м2
Описание
Шикарная квартира для комфортной жизни Просторная 3-комнатная квартира с дизайнерским ремонтом в Жуковском**
ДОПОЛНИТЕЛЬНАЯ ИНФОРМАЦИЯ ПО СДЕЛКЕ
* Описание и фотографии полностью соответствуют действительности.
* Один взрослый собственник.
* Зарегистрированных нет.
* Альтернативная продажа.
Продается уютная и функциональная 3-комнатная квартира, расположенная по адресу: г. Жуковский, Строительная улица дом 14 к1. Этот вариант идеально подойдет для семьи, ценящей комфорт, стиль и удобство.
**О КВАРТИРЕ:**
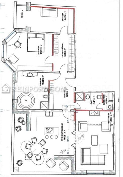
Вас ждет просторная квартира общей площадью 133.6 кв.м., расположенная на 10 этаже. Особенностью данного предложения является выполненный дизайнерский ремонт, который придает пространству неповторимый шарм и уют.
Квартира имеет продуманную планировку:
* **Жилая площадь:** 58,9 кв.м.
* **Высота потолков:** 2.7 м.
* **Три изолированные комнаты:** площадью 23,5 кв.м., 18,9 кв.м. и 16,5 кв.м., что обеспечивает личное пространство каждому члену семьи.
* **Просторная кухня-гостиная:** 21.1 кв.м. – идеальное место для семейных ужинов и встреч с друзьями.
* **Вместительный коридор.**
* **Два раздельных санузла:** один из которых оборудован сауной для вашего релакса, а в другом предусмотрена удобная прачечная зона.
Расположение квартиры на этаже обеспечивает меньше соседей, а дополнительная шумоизоляция стен гарантирует тишину и спокойствие. Окна квартиры выходят в тихий двор, откуда открываются приятные виды.
Квартира оснащена всем необходимым для комфортного проживания: многочисленные встроенные шкафы для хранения, полностью оборудованная встроенной техникой кухня (духовой шкаф, посудомоечная машина, варочная панель), кондиционеры на кухне и в комнатах, а также теплые полы в санузлах, на лоджии и в коридоре.
Эта квартира – превосходный выбор для тех, кто ищет готовое решение для комфортной и безопасной жизни.
**О ДОМЕ И ИНФРАСТРУКТУРЕ:**
Дом кирпично-монолитный, 2007 года постройки, отличается чистым и просторным подъездом, оборудован грузовым лифтом. Вас ждут порядочные соседи.
Закрытая территория двора обеспечивает дополнительную безопасность для вас и ваших близких. Во дворе расположены детские и спортивные площадки, где дети смогут играть и заниматься спортом.
Район тихий и зеленый, с давно сложившейся и развитой инфраструктурой. В шаговой доступности есть все необходимое: школы, детские сады, поликлиника, зоны отдыха, аптеки, множество магазинов, салоны красоты, пункты выдачи OZON и Wildberries. Рядом находится парк, где вы сможете наслаждаться прогулками на свежем воздухе.
Отличная транспортная доступность как для автомобилистов, так и для пользователей общественного транспорта. До МЦД Отдых всего 15 минут пешком.
**Мы готовы БЕСПЛАТНО проконсультировать Вас по всем вопросам, связанным со сделкой Звоните прямо сейчас**
Дополнительная информация:
Элитное жилье:
да
Наличие лифта:
есть
Балкон/Лоджия:
лоджия
Высота потолка:
2.7 м
Площадь кухни:
21 м2
Этаж:
10
Этажей всего:
10
Мусоропровод:
нет










