Размещено 19 февраля 2026 в 16:04
98
Цена: 8.5 млн. рос. руб.
101 193
87 369
Основные характеристики:
ID:
95970
Тип сделки:
Продам
Страна:
Российская Федерация
Субъект/Область:
Свердловская обл.
Город:
Курганово
Улица:
Отто шмидта
Дом/корп.:
29
Тип недвижимости:
Дом
Категория недвижимости:
Вторичная
Комнаты:
4
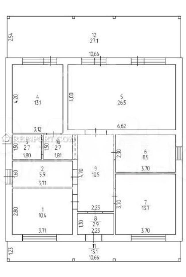
Общая площадь:
135 м2
Описание
Лот №528.
Продается дом напрямую от застройщика.
Подходит под все виды льготных ипотек.
Гарантия 5 лет.
Дом в стиле шале, две крытых террасы, отделка фасада - штукатурка+планкен.
В доме 3 спальни, кухня-гостиная, два санузла, гардероб.
Отделка под чистовую.
Не упустите возможность стать владельцами этого замечательного дома.
Звоните, записывайтесь на просмотр.
Дополнительная информация:
Санузел:
совмещенный









