Размещено 20 февраля 2026 в 16:59
69
Цена: 260 тыс. рос. руб. в месяц
3 261
2 820
Основные характеристики:
ID:
3311
Тип сделки:
Сдам
Страна:
Российская Федерация
Субъект/Область:
Волгоградская обл.
Город:
Волгоград
Район/Микрорайон:
Советский
Улица:
Ярославская
Тип недвижимости:
Офисное помещение
Категория недвижимости:
Вторичная
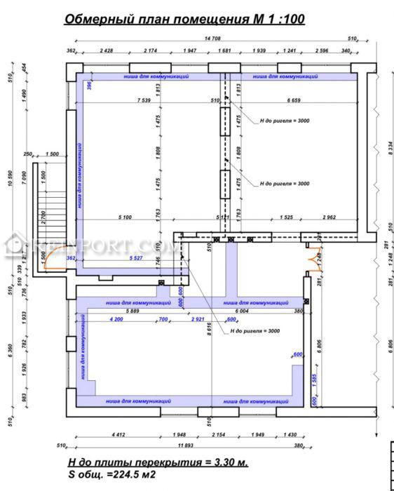
Общая площадь:
200 м2
Описание
К аренде предлагается помещение по адресу: Ярославская улица, 21/1 в закрытом клубном комплексе «Кокос», Советский район.
Площадь помещения: 200 кв. метров.
Помещение свободного назначения, расположено в географическом центре г. Волгограда. Пространство возможно использовать для офиса формата Open Space с зоной для отдыха, комнатой для переговоров. Локация подойдет для компании, чья деятельность связана с конфиденциальной информацией и закрытыми встречами. В условиях расположения пощения в развитом густонаселенном микрорайоне возможно использование данного пространства для Beauty, фитнесс направления или Event индустрии.
Помещение спроектировано таким образом, что его можно разделить на несколько многофункциональных зон, реализовать несколько проектов одновременно.
В настоящее время начинаются ремонтные работы. Отделка будет исполнена под конкретные нужды будущего арендатора.
Объект №870558
Дополнительная информация:








