Размещено 19 февраля 2026 в 21:11
28
Цена: 5312 тыс. гривен
129 000
109 165
Основные характеристики:
ID:
297921
Тип сделки:
Продам
Страна:
Украина
Субъект/Область:
Киевская обл.
Город:
Ирпень
Улица:
Соборная
Тип недвижимости:
Офисное помещение
Категория недвижимости:
Вторичная
Общая площадь:
130 м2
Описание
Продається двоповерхова нежитлова будівля в самому центрі міста на вул. Соборна, 107 ідеально для вашого бізнесу
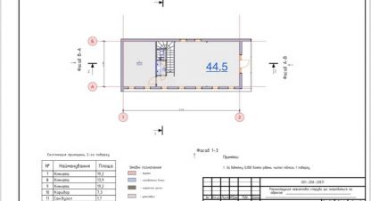
Це просторе світле приміщення загальною площею 130 кв.м розташоване в серці міста, у дворі багатоквартирного будинку, поруч з усією інфраструктурою: магазини, ринок, кафе, навчальні заклади та житлові будинки все, що потрібно для стабільного потоку клієнтів та зручності працівників.
Стан: Новобудова. Без ремонту, виконана штукатурка на першому поверсі, що дозволяє вам адаптувати простір під свої потреби.
Комунікації: Підключено електроенергію (16 кВт), центральну каналізацію та воду.
Планування: Функціональні 5 кабінетів (3 на першому поверсі, 2 на другому), передбачені окремі кімнати для санвузлів на кожному поверсі. Високі стелі (3,5 м на першому поверсі та 3 м на другому) додають простору, а численні вікна забезпечують природне освітлення. Балкони на кожному поверсі.
Доступ та інфраструктура: Асфальтований підїзд, зручні паркомісця, поруч дитячий майданчик.
Це приміщення ідеально підходить для офісу, медичного чи навчального закладу або будь-якого бізнесу, орієнтованого на комфортну доступність для клієнтів. Запрошуємо на перегляд, щоб обговорити можливості адаптації приміщення під ваші потреби
Подробно: Соборна, участок: 1.00 , 1/2 эт.
Дополнительная информация:










